






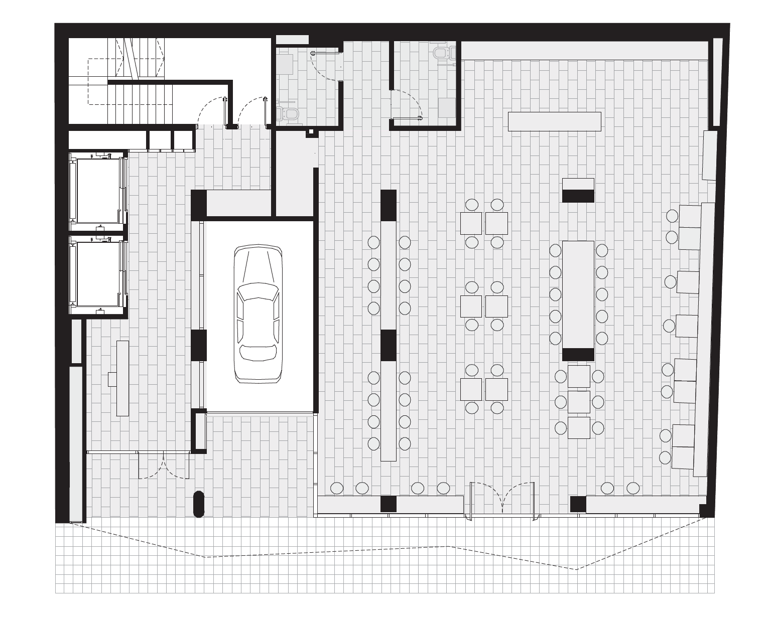
Planta baja
_ Acceso peatonal / vehicular / local

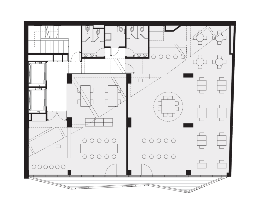
Plantas 1º – 2º piso
_ Locales de oficinas

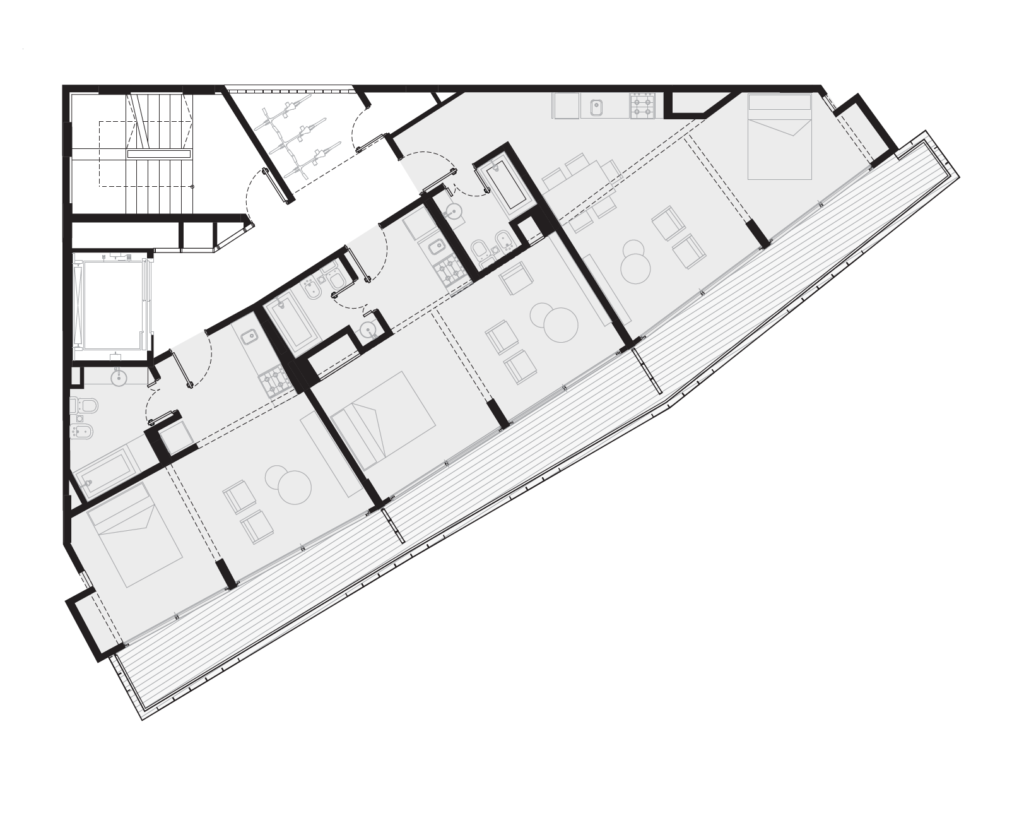
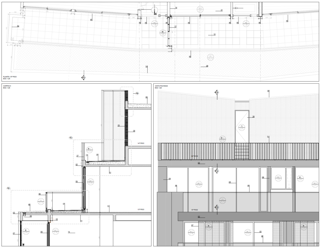
Plantas 4º – 13º
_ Viviendas







Diseño y proyecto de edificio de locales y viviendas ubicado en Bernardo Irigoyen 1170, Buenos Aires.







Planta baja
_ Acceso peatonal / vehicular / local

Plantas 1º – 2º piso
_ Locales de oficinas

Plantas 4º – 13º
_ Viviendas






