










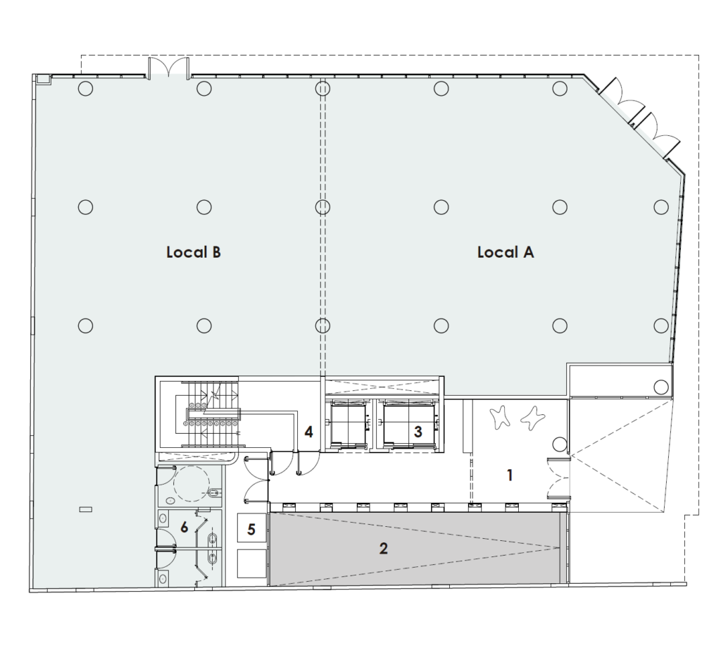
Planta Baja
Acceso peatonal / vehicular y locales

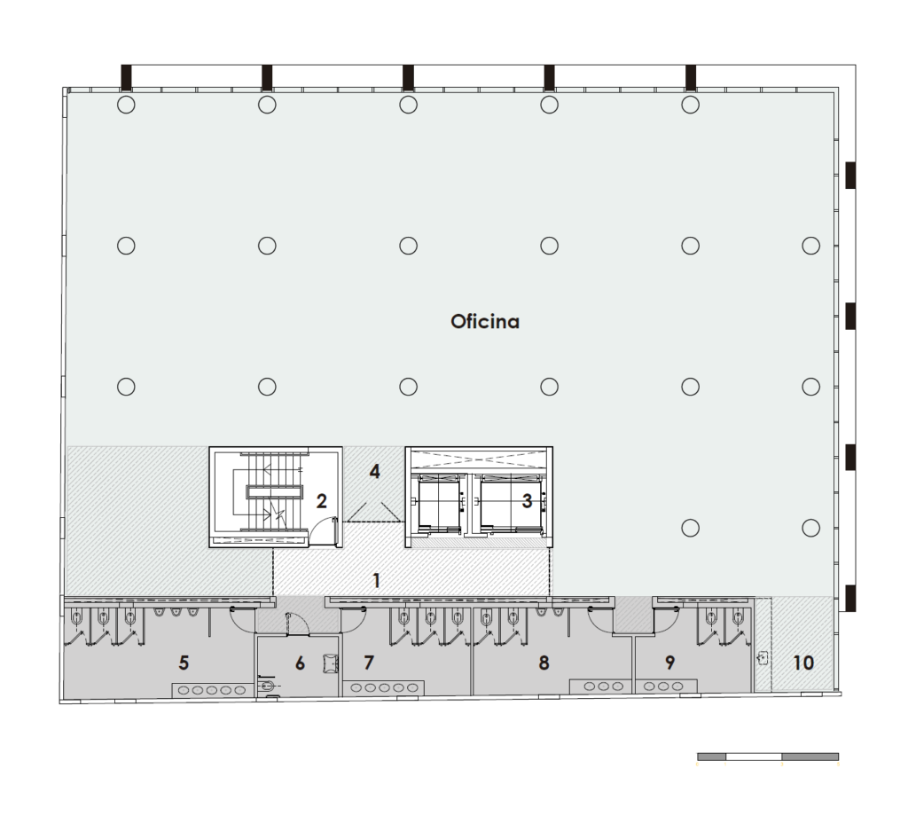
Planta 2º a 5º piso
Oficinas

Planta 11º piso
SUM y terraza


Diseño y proyecto de edificio de oficinas ubicado en Caseros 3402, Buenos Aires.











Planta Baja
Acceso peatonal / vehicular y locales

Planta 2º a 5º piso
Oficinas

Planta 11º piso
SUM y terraza

